This website works better with JavaScript
Главная
Обзор
Помощь
Регистрация
Вход
doc
/
persagy-service-doc
Следить
10
В избранное
0
Ответвить
0
Файлы
Обсуждения
0
Запросы на слияние
0
Вики
Дерево:
670d6425fd
Ветки
Метки
master
persagy-serv...
/
docs
/
dev
/
data-center
/
relations
/
problems
/
vwall_problem.md
vwall_problem.md
643 B
История
Исходник
虚拟墙在计算业务空间之间的关系的问题
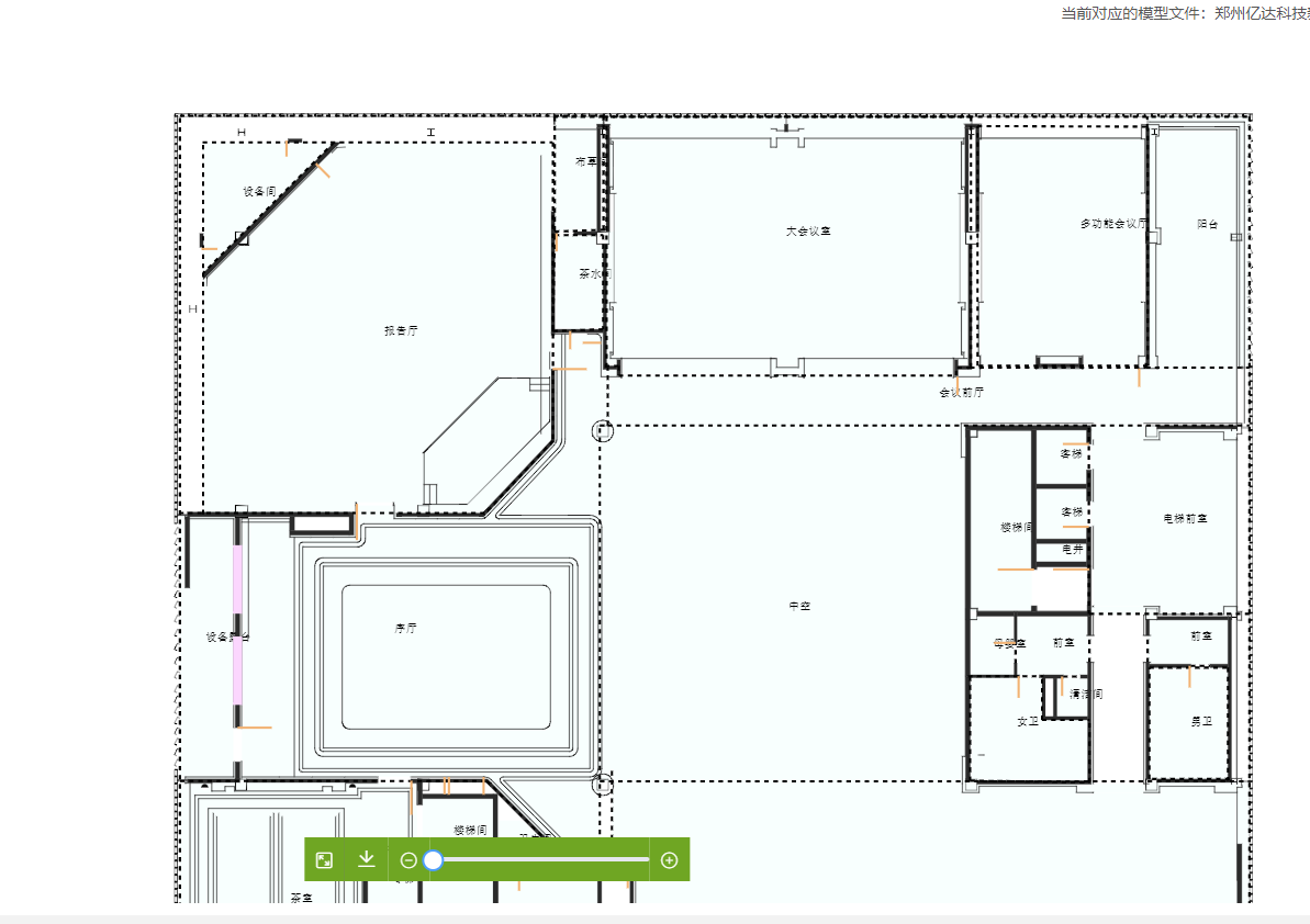
虚拟墙的应用
虚拟墙是人为根据实际的业务场景需求而建立的墙, 如图所示: 虚拟墙跟实体墙一样, 有分隔元空间的作用
问题1 -- 模型画的不规范
如图所示, 红色箭头锁指的四段虚拟墙实则是一段虚拟墙, 有两部分跟真实的墙重叠在了一起
如果按照建模规范, 虚拟墙体不能跟真实墙体重叠
问题2 -- 目前不能使用 "开虚拟门" 的方式来处理虚拟墙